DetailansichtKurz-Exposé

Wohnimmobilie > Einfamilienhaus
Zu Verkaufen

Großzügiges Wohnen in Varel - Platz genug für Hobbies, Heimkino, viele Gäste oder die große Familie

26316 Varel
339.000 €

25-NF-114
1979
212 m²
601 m²
7
  • Willkommen in Ihrem Traumhaus mitten in Varel!

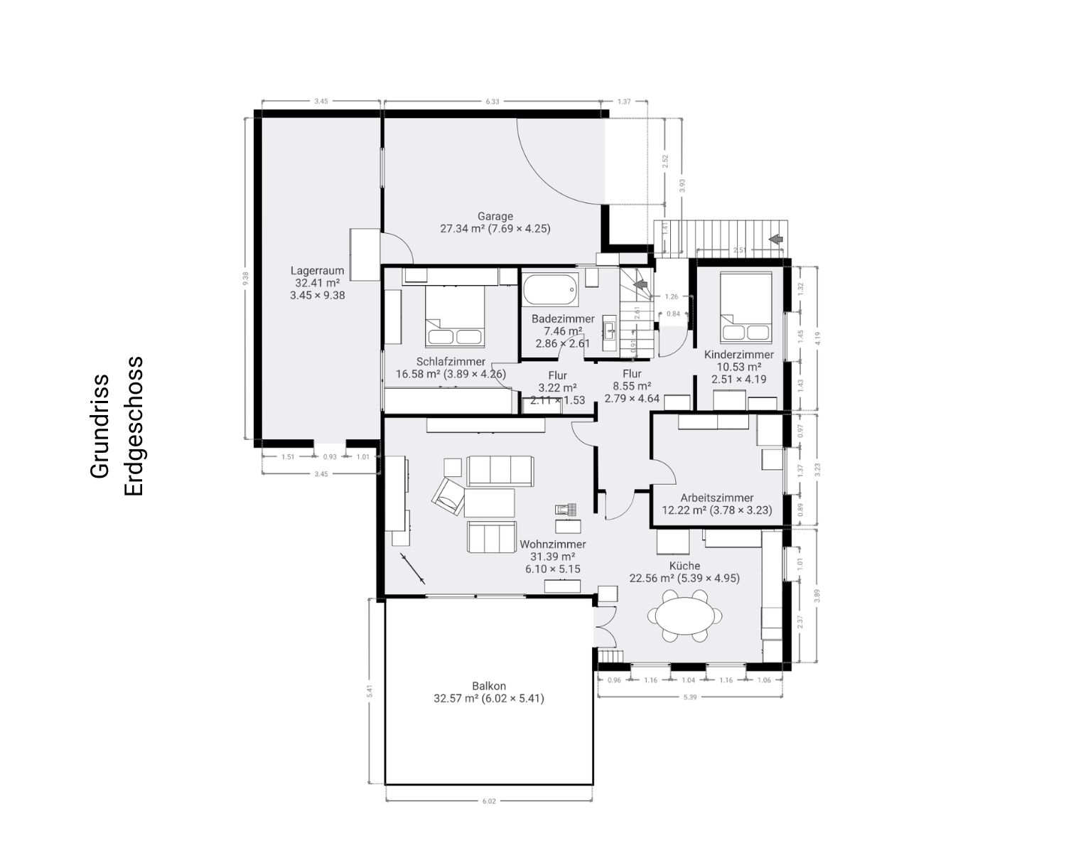
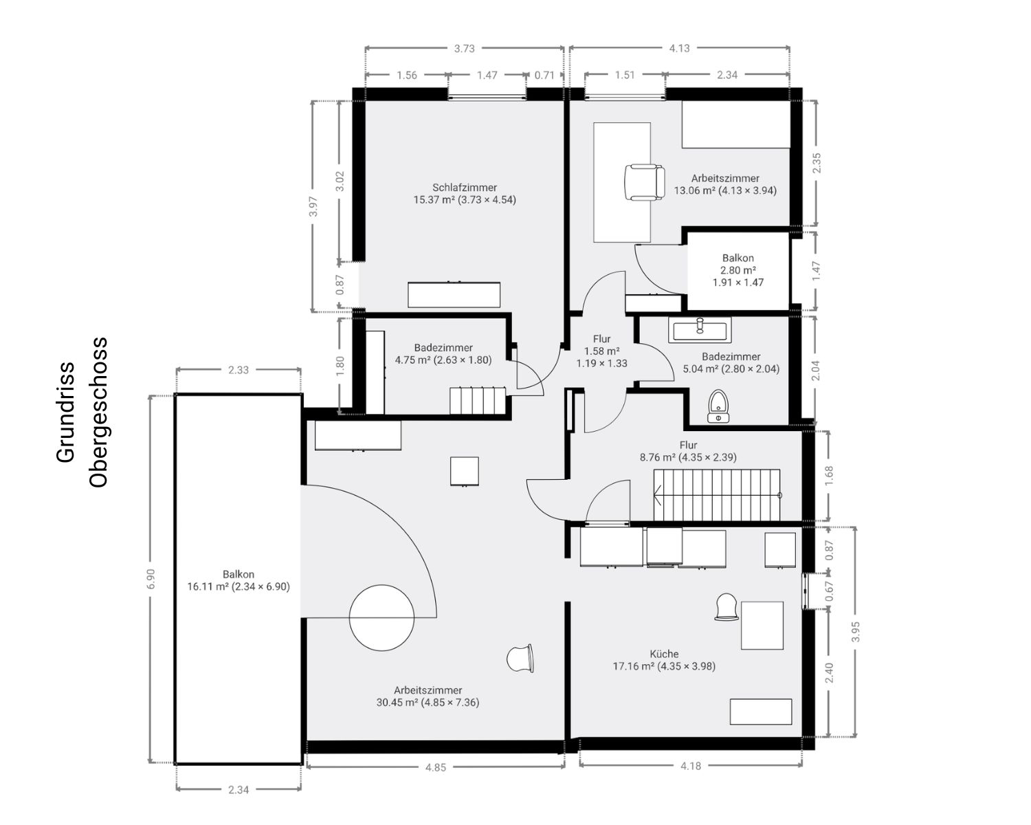
    Dieses Haus aus dem Jahr 1979 bietet Ihnen alles, was das Herz begehrt. Mit einer großzügigen Wohnfläche von ca. 212 m² und einer zusätzlichen Nutzfläche von ca. 80 m² haben Sie hier jede Menge Platz für Ihre Wohnträume.

    Auf sieben Zimmern im Erd- und Dachgeschoss verteilen sich alle Möglichkeiten – ob Familienleben, Homeoffice oder Kreativraum, hier finden alle Lebensentwürfe ihren Raum. Drei moderne Badezimmer machen den Alltag besonders komfortabel, und dank der praktischen Einliegerwohnung mit nochmals 4 Zimmern im Souterrain können Sie auch Gäste willkommen heißen oder unkompliziert vermieten.

    Das Haus steht auf einem pflegeleichten Grundstück von ca. 601 m², das Ihnen sowohl Erholung im Grünen als auch genug Platz für Gartenpartys oder entspanntes Sonnenbaden bietet. Lassen Sie sich von der Qualität und dem Charme dieser Immobilie überzeugen – hier ist der perfekte Ort, um Wurzeln zu schlagen und sich Zuhause zu fühlen.

    Warum noch warten? Ergreifen Sie die Chance auf dieses einzigartige Zuhause und machen Sie es zu Ihrem eigenen!

  • Flächen

    • Wohnfläche: 212 m²
    • Grundstücksfläche: 601 m²
    • Nutzfläche: 80 m²
    • Zimmer insgesamt: 7
    • Badezimmer: 3
    • Separate WCs: 1
    • Etagen: 2
    • Einliegerwohnung: ja
    • Außenstellplätze: 3
    • Garagenstellplätze: 1
    • Balkone: 1
    • Terrassen: 1

    Zustand & Erschließung

    • Baujahr: 1979
    • Zustand: gepflegt
    • Keller: voll unterkellert

    Sonstiges

    Es liegt ein Energieverbrauchsausweis vor.
    Dieser ist gültig bis 30.8.2035.
    Endenergieverbrauch beträgt 168.70 kwh/(m²*a).
    Wesentlicher Energieträger der Heizung ist Gas.
    Das Baujahr des Objekts lt. Energieausweis ist 1979.
    Die Energieeffizienzklasse ist F.

    Diese Immobilie ist sofort verfügbar und eignet sich ideal für Interessenten, die zeitnah einziehen oder das Objekt kurzfristig nutzen möchten.

    Ein Energieausweis in Form eines Verbrauchsausweises liegt vor. Das im Energieausweis angegebene Baujahr ist 1979, die Beheizung erfolgt über eine 2014 neu installierte Brennwert-Therme mit Gas als wesentlichem Energieträger.

    Ihr besonderer Vorteil bei diesem Objekt: Es fällt keine Maklerprovision an.

    Gerne stehen wir Ihnen bei allen Fragen zu diesem Objekt zur Verfügung. Das Exposé geht Ihnen innerhalb weniger Minuten nach Ihrer Anfrage automatisch zu, und wir stellen Ihnen alle weiteren Unterlagen bei Bedarf kurzfristig zur Verfügung.

    Besichtigungstermine sind selbstverständlich auch am Wochenende oder Abends möglich.

    • Immobilie ist verfügbar ab: sofort verfügbar
  • Entdecken Sie Ihr neues Zuhause mit beeindruckenden Extras, die jeden Tag zu einem Erlebnis machen! Freuen Sie sich auf ausreichend Platz für alle Besucher, für die sich sogar im beheizten und voll ausgebauten Keller ein Badezimmer und eine kleine Küche befindet. Sat-TV in allen Räumen des Hauses garantiert die besten Filmabende, beispielsweise in einem der großen Zimmer im Keller, in denen ursprünglich einmal ein Heimkino geplant war. Machen Sie es sich an kühleren Tagen vor dem Kamin im Wohnzimmer gemütlich oder genießen Sie an warmen Tagen die Sonne wahlweise auf Ihrer Terrasse, dem wunderschön und pflegeleicht angelegten Garten – oder auf Ihrem großzügigen Balkon. Dank der Zentralheizung mit Gasbefeuerung ist es immer kuschelig warm. Lassen Sie sich inspirieren und gestalten Sie Ihr Leben in diesem tollen Zuhause!

    • Art der Ausstattung: Standard
    • Heizungsart: Zentralheizung
    • Befeuerung: Gas
    • Einliegerwohnung
    • Gäste-WC
    • Kabel/Sat-TV
    • Kamin
    • Energieausweis-Art: Verbrauch
    • Energieausweis gültig bis: 30.08.2035
    • Energieverbrauchskennwert: 168,70 kWh/(m²*a)
    • Primärenergieträger: Gas
    • Energieeffizienzklasse: F
    • Baujahr (Energieausweis): 1979
    • Energieausweis-Jahrgang: ab Mai 2014
    • Energieausweis-Gebäudeart: Wohngebäude
  • Das Einfamilienhaus befindet sich in einer attraktiven Wohngegend von Varel, in einer Umgebung, die sowohl Ruhe als auch eine ausgezeichnete Infrastruktur bietet. Die Nähe zur Autobahn, die jedoch nicht zu hören ist, ermöglicht eine unkomplizierte Anbindung an die Städte Wilhelmshaven, Oldenburg und selbst in Bremen ist man in weniger als einer Stunde. Attraktive Ausflugsziele wie das Nordseebad Dangast befinden sich in der Umgebung. Familien mit Kindern finden in Varel außerdem eine Vielzahl von Bildungseinrichtungen, die das tägliche Leben erleichtern: Ein Kindergarten ist in weniger als einem Kilometer erreichbar, und die Grundschule liegt in bequemer Nähe. Auch weiterführende Schulen sind zügig erreichbar, wobei das Gymnasium nur etwa einen Kilometer entfernt ist. Diese Lage kombiniert auf harmonische Weise die Vorzüge einer familiären und sicherheitsbetonten Umgebung mit hervorragenden Verkehrsanbindungen und einem umfassenden Bildungsangebot.

    • Distanz zum Flughafen: 10,6 km
    • Distanz zum Fernbahnhof: 1,1 km
    • Distanz zur Autobahn: 2,8 km
    • Distanz zu Bushaltestelle: 0,7 km
    • Distanz zum Kindergarten: 0,9 km
    • Distanz zur Grundschule: 0,7 km
    • Distanz zur Realschule: 5,0 km
    • Distanz zum Gymnasium: 1,0 km
    • Distanz zu Einkaufsmöglichkeiten: 1,4 km
    • Distanz zu Gaststätten: 1,0 km
    • Kaufpreis: 339.000 €

Deine Ansprechpartnerin bei uns

Neele Emma Frisch

Immobilienmaklerin
     
Sicher!  

3 Bedroom Duplex

It is a long established fact that a reader will be distracted by the readable content of a page when looking at its layout.

BEDROOM3
BATHROOM2
PARKING1
https://frisch.company/wp-content/uploads/2020/01/slider_single_project.jpg
https://frisch.company/wp-content/uploads/2020/01/slider_single_project_2.jpg
https://frisch.company/wp-content/uploads/2020/01/slider_single_project_3.jpg
ABOUT NEW RESIDENTIAL PROJECT

Offline to maximise the long tail. Keeping your eye on the ball while performing a deep dive on the start-up mentality to derive convergence on cross-platform integration. Collaboratively administrate empowered markets via plug-and-play networks. Dynamically procrastinate B2C users after installed base benefits. Dramatically visualize customer directed convergence without revolutionary ROI. Efficiently unleash cross-media information without cross-media value.

HEATED POOL

SPACIOUS PROPERTY

ZEN GARDEN

ELEGANT FINISHES

ELECTRIC CHARGER

PRIVATE SECURITY

START DATEAugust 17th 2020
FINISH DATEJuly 14th 2020
CONTRACTORNesting Group inc.
SQM55678
SELECTED PROJECTS

Leverage agile frameworks to provide a your eye on the ball while performing a deep robust synopsis for high level overviews. Iterative approaches to corporate strategy foster collaborative thinking to further the overall value proposition. Podcasting operational change management inside of workflows to establish a framework.

You have opened the detail page, but we do not know which estate to show you, because there is no estate ID in the URL. Please go to an estate list and open an estate from there.

Luxury Houses

from $999 000

https://frisch.company/wp-content/uploads/2020/02/pattern_linear_02.png

Luxury Houses

from $999 000

Living Room
Living Room
Bathroom
Kitchen
Kitchen
Bedroom

CONTACT USSchedule a visit

The arrangement and layout of the apartments maximises natural light, opening to elegant private balconies.
https://frisch.company/wp-content/uploads/2020/01/contact_img-640x480.jpg

Sandra Stewart

Real estate agent

+1 800 100 900
sandras@nestin.com

    INSTAGRAM
    KONTAKT

    Frisch & Company – hanseatisch. modern. persönlich.

    © Frisch & Company, 2025